PROPERTY LOCATION:
KEY FEATURES:
- AVAILABLE 31st JANUARY 2026
- UNFURNISHED
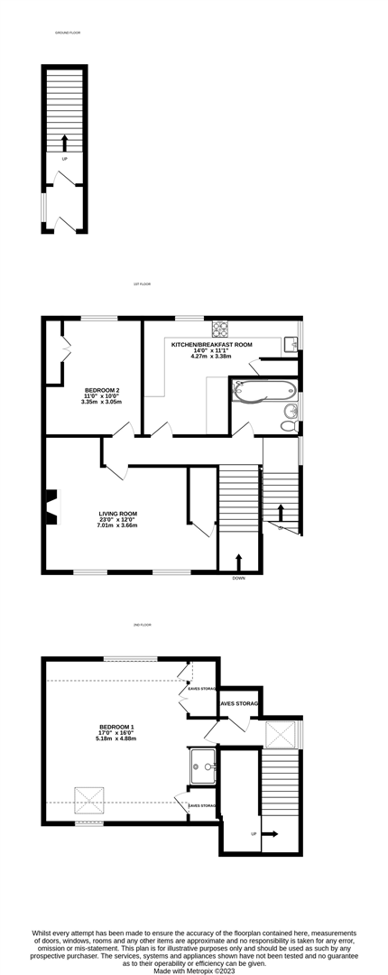
- TWO BEDROOM MAISONETTE
- SPACIOUS LOUNGE WITH GAS FIRE
- MODERN FULLY FITTED KITCHEN WITH RANGE COOKER
- STUNNING LOFT ROOM WITH VIEWS
- 2ND DOUBLE BEDROOM
- GENEROUS STORAGE
- ONE ALLOCATED PARKING SPACE
- IDEAL FOR VILLAGE & AMENITIES
PROPERTY DETAILS:
A very spacious two bedroom duplex maisonette, positioned just a stone's throw from Ashtead Village centre. The property has a modern kitchen and bathroom, a generous size living area and a stunning beamed loft room with far reaching views. Own courtyard garden at the rear of the property and one allocated parking space.
PROPERTY INFORMATION:
Utilities, risks, rights & restrictions
Utility Support
Electricity: Ask agent
Water: Ask agent
Heating: Ask agent
Broadband: Ask agent
Sewerage: Ask agent
Rights and Restrictions
Restrictions: Ask agent
Rights: Ask agent
Risks
Flooded in last five years: Ask agent
Flood source: Ask agent
Flood defences: Ask agent
PROPERTY OFFICE :









