PROPERTY LOCATION:
KEY FEATURES:
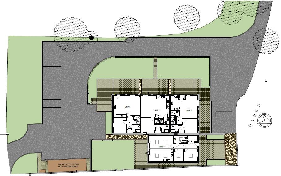
- BRAND NEW END TERRACE MEWS HOME
- SOUGHT AFTER PRIVATE ESTATE
- 2 PARKING SPACES
- UNDERFLOOR HEATING TO BOTH FLOORS
- OPEN PLAN KITCHEN/LIVING ROOM
- PRIVATE GARDEN
- 2 MORE DOUBLE BEDROOMS + FAMILY BATHROOM
- PRINCIPAL BEDROOM + ENSUITE SHOWER ROOM
- GUEST CLOAKROOM
- 10 YEAR WARRANTY
PROPERTY DETAILS:
Located on this sought after private estate, this mid terrace brand new mews style home offers 1179 sq.ft. of space over 2 floors being just one of 4 new homes completed to a high standard by Gearing Developments. Ready for immediate occupation and offered with a 10 year Warranty from AHCI, this house comes with a two parking spaces (one with dedicated electric charging point). Features include oak veneered internal doors, double glazed units and gas fired water underfloor heating to both ground and first floors. The kitchen and bathrooms are beautifully appointed with quality appliances and sanitary ware.Outside to the front there is a lawned garden enclosed with ranch style fencing and an attractive outlook over adjoining Green Belt grazing land.
PROPERTY INFORMATION:
Utility Support
Rights and Restrictions
Risks
RECENTLY VIEWED PROPERTIES :
| 3 Bedroom Semi-Detached House - HARTFIELD ROAD, LEATHERHEAD, KT22 | £599,950 |
PROPERTY OFFICE :
1 - 3 Church Street, Leatherhead, Surrey, KT22 8DN
T: 01372 360078
















