PROPERTY LOCATION:
KEY FEATURES:
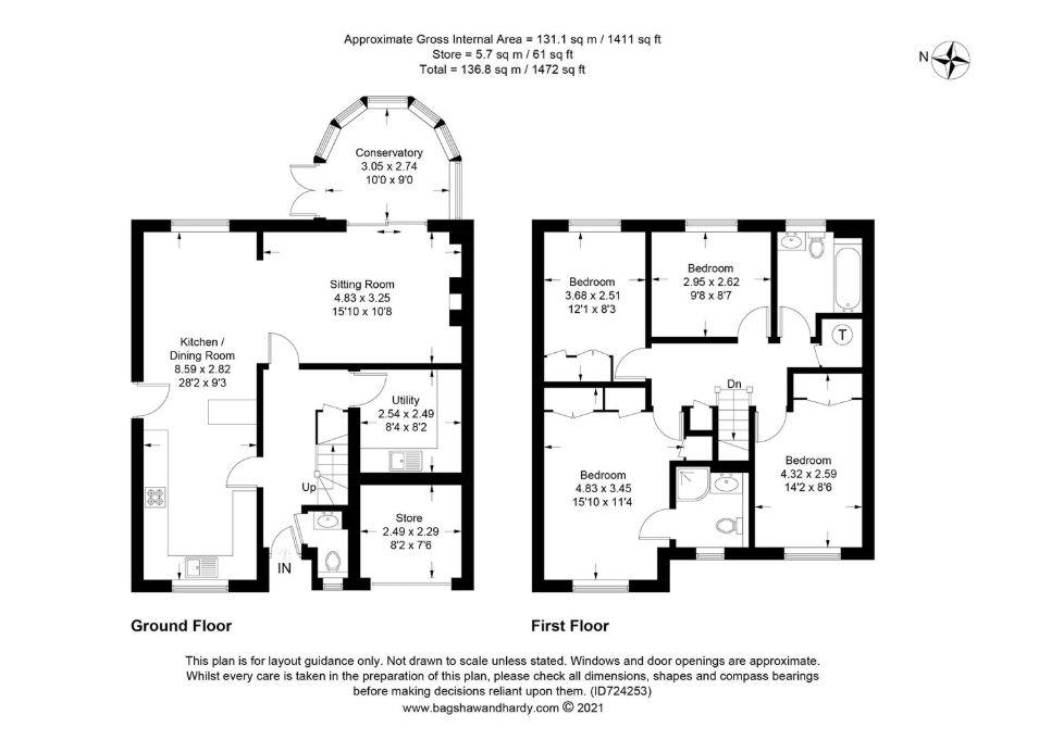
- SEMI-DETACHED FAMILY HOUSE
- FOUR BEDROOMS
- OPEN PLAN KITCHEN BREAKFAST ROOM
- TWO BATHROOMS
- UTILITY ROOM
- SITTING/DINING ROOM
- HALF GARAGE/STORE
- CONSERVATORY
- SHORT WALK TO STATION & SCHOOLS
- CUL-DE-SAC
PROPERTY DETAILS:
This four-bedroom family home, set at the head of a popular residential cul-de-sac within a short walk of Leatherhead’s mainline railway station and local schools, has been remodelled on the ground floor to create a modern open plan layout. This lovely property offers 1472 sq.ft. and features a separate utility room, principal bedroom ensuite and off street parking.
PROPERTY INFORMATION:
Utilities, risks, rights & restrictions
Utility Support
Electricity: Ask agent
Water: Ask agent
Heating: Ask agent
Broadband: Ask agent
Sewerage: Ask agent
Rights and Restrictions
Restrictions: Ask agent
Rights: Ask agent
Risks
Flooded in last five years: Ask agent
Flood source: Ask agent
Flood defences: Ask agent
PROPERTY OFFICE :
Patrick Gardner Leatherhead Office
1 - 3 Church Street, Leatherhead, Surrey, KT22 8DN
T: 01372 360078
1 - 3 Church Street, Leatherhead, Surrey, KT22 8DN
T: 01372 360078















