PROPERTY LOCATION:
KEY FEATURES:
- DETACHED PARK HOME
- TWO BEDROOMS
- POPULAR RICKWOOD PARK
- AGED RESTRICTED FOR OVER 40+
- NO DOGS PERMITTED
- MODERN & WELL PRESENTED UNIT
- SPACIOUS KITCHEN BREAKAST ROOM
- CASH BUYERS ONLY
- CHAIN FREE
- READY TO MOVE INTO
PROPERTY DETAILS:
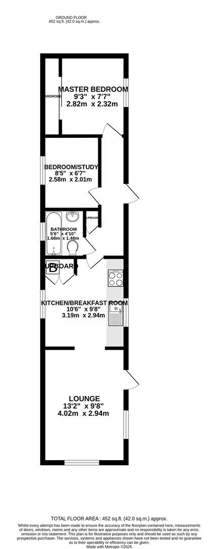
This well presented two bedroom modern park home is offered to the market with the added benefit of being offered to the market chain free. The property is ready to move into with very little to do before moving the furniture in. Various benefits include double glazing and gas fired central heating.Accommodation comprises of a kitchen/breakfast room with a selection of modern wall and base units including some integral appliances including a gas hob, electric built under oven, and a washing machine. The kitchen is complemented with ample work top surfaces and a water softener. The sitting room area is positioned to the front of the property and enjoys the benefit of an Air Conditioning unit, ideal for those hot summer days. The Master double bedroom has plenty of storage with fitted wardrobe space to one side and fitted with sliding doors to the front. The second bedroom doubles up well as a study, and the bathroom which benefits from a modern suite and is finished very well with contemporary ceramic tiling.A small garden comprises a separate patio area to the rear of the property. The garden wraps around the property, with a very handy free standing shed/storage.Rickwood Park Estates Ltd is a family owned site. Residential Park Home Estates business established in 1953. Ten percent of the sale price is payable to the site owners when the property is purchased by the new owner. No dogs are permitted on this site. This site is age restricted especially for the 40's+ You cannot purchase a Park Home with Mortgage funds.
PROPERTY INFORMATION:
Utility Support
Rights and Restrictions
Risks
PROPERTY OFFICE :









